Zoek binnen het forum
Vraag: brandveiligheid liftschacht gelegen in een extra beveiligde vluchtroute
Naam: Eric Mathot, van Van Dop + Mathot architecten (datum: 26-05-2023 17:24)
Goedemiddag,
Ik heb een technische vraag over de brandveiligheid voor een liftschacht, graag zou ik jullie advies hierover willen.
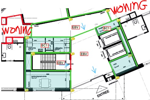
De gebruiksfunctie van dit project is woonfunctie voor zorg, er zijn 6 groepswoningen verdeeld over 3 bouwlagen. We passen in dit project een extra brandscheiding toe tussen de woningen en de lifthal om gebruik te kunnen maken van de lift bij ontruimen (zoals dat binnenkort ook wordt vereist). Zie onderstaande afbeelding ter info met overzicht brandscheidingen.
Ik loop tegen het probleem aan dat het qua regelgeving is toegestaan dat een liftschacht gelegen is aan een extra beschermde vluchtroute (en daar logischerwijs deel van uitmaakt, liftdeuren worden immers niet rookwerend uitgevoerd), maar er gelden ook eisen aan de lift die dan praktisch gezien niet realiseerbaar zijn (als ik mijn adviseur liftleverancier moet geloven). Ivm de extra beschermde vluchtroute worden ook eisen gesteld aan de brandklasse; brandklasse B dus ook voor bv. leidingwerk in de liftschacht.
Ik heb dit voorgelegd aan de technisch adviseur van de betreffende liftfabrikant en hij geeft aan dat hij niet bekend is met deze eis (in 30 jaar niet eerder voorgekomen) en ook niet weet hoe dit praktisch uit te voeren is voor een lift.
Ik vind dit uiterst vreemd, omdat de situatie met een lift en noodtrap binnen een extra beschermde vluchtroute een veelgebruikte situatie is.
Weten jullie of dit klopt, is de eis voor brandklasse B inderdaad van toepassing en zo ja, hoe kunnen we daaraan voldoen?
Alvast bedankt voor de reactie.
Bijlage: Afbeelding1 Lift in EBV.jpg Reageer
Naam: Eric Mathot, van Van Dop + Mathot architecten (datum: 26-05-2023 17:24)
Goedemiddag,
Ik heb een technische vraag over de brandveiligheid voor een liftschacht, graag zou ik jullie advies hierover willen.
De gebruiksfunctie van dit project is woonfunctie voor zorg, er zijn 6 groepswoningen verdeeld over 3 bouwlagen. We passen in dit project een extra brandscheiding toe tussen de woningen en de lifthal om gebruik te kunnen maken van de lift bij ontruimen (zoals dat binnenkort ook wordt vereist). Zie onderstaande afbeelding ter info met overzicht brandscheidingen.
Ik loop tegen het probleem aan dat het qua regelgeving is toegestaan dat een liftschacht gelegen is aan een extra beschermde vluchtroute (en daar logischerwijs deel van uitmaakt, liftdeuren worden immers niet rookwerend uitgevoerd), maar er gelden ook eisen aan de lift die dan praktisch gezien niet realiseerbaar zijn (als ik mijn adviseur liftleverancier moet geloven). Ivm de extra beschermde vluchtroute worden ook eisen gesteld aan de brandklasse; brandklasse B dus ook voor bv. leidingwerk in de liftschacht.
Ik heb dit voorgelegd aan de technisch adviseur van de betreffende liftfabrikant en hij geeft aan dat hij niet bekend is met deze eis (in 30 jaar niet eerder voorgekomen) en ook niet weet hoe dit praktisch uit te voeren is voor een lift.
Ik vind dit uiterst vreemd, omdat de situatie met een lift en noodtrap binnen een extra beschermde vluchtroute een veelgebruikte situatie is.
Weten jullie of dit klopt, is de eis voor brandklasse B inderdaad van toepassing en zo ja, hoe kunnen we daaraan voldoen?
Alvast bedankt voor de reactie.
Bijlage: Afbeelding1 Lift in EBV.jpg Reageer
Re: brandveiligheid liftschacht gelegen in een extra beveiligde vluchtroute
Naam: pino (datum: 27-05-2023 12:07)
snap het verhaal niet zo.
Bij brand in de vluchtroute is deze automatisch onbruikbaar.
Bij brand in een ander compartiment heb je daar in de beschermde vluchtroute geen last van
Naam: pino (datum: 27-05-2023 12:07)
snap het verhaal niet zo.
Bij brand in de vluchtroute is deze automatisch onbruikbaar.
Bij brand in een ander compartiment heb je daar in de beschermde vluchtroute geen last van
Re: brandveiligheid liftschacht gelegen in een extra beveiligde vluchtroute
Naam: Angelique (datum: 31-05-2023 11:07)
Hoe zit het dan met brandweerliften.. daar zullen die eisen dan toch ook van toepassing zijn...
Naam: Angelique (datum: 31-05-2023 11:07)
Hoe zit het dan met brandweerliften.. daar zullen die eisen dan toch ook van toepassing zijn...
Re: brandveiligheid liftschacht gelegen in een extra beveiligde vluchtroute
Naam: J. Bolte , van BJH Safety Services (datum: 31-05-2023 13:09)
Je stelt dat er eisen worden gesteld aan de brandklasse van DE LIFT, maar het bouwbesluit vraagt (heel technisch gezien) geen lift maar een 'opstelplaats'. Dus alleen het vlekje op de vloer en de schacht waarin die lift moet lopen.
De materiaaleisen voor bouwconstructies kun je dus ook niet 1 op 1 toepassen voor een lift.
Het Warenwetbesluit liften pakt de draad vervolgens weer op, en omschrijft (ook via NEN-normen) waaraan een liftinstallatie verder moet voldoen. Ook dat kun je tijdens een aanvraag toetsen, maar daarvoor reikt de kennis van de meeste toetsers niet diep genoeg.
Wat je wel nog kunt bekijken is of je per bouwlaag niet over je maximale permanente vuurlast heen gaat(uit mijn hoofd 3500 MJ?), maar dat is meestal geen probleem. Ook weer heel formeel gaat die eis alleen over het trappenhuis. Ik weet zo niet of de formulering in het BBL nu ook anders is gemaakt, want dat zou bij een lifthal ook wel een verstandige keuze zijn.
Naam: J. Bolte , van BJH Safety Services (datum: 31-05-2023 13:09)
Je stelt dat er eisen worden gesteld aan de brandklasse van DE LIFT, maar het bouwbesluit vraagt (heel technisch gezien) geen lift maar een 'opstelplaats'. Dus alleen het vlekje op de vloer en de schacht waarin die lift moet lopen.
De materiaaleisen voor bouwconstructies kun je dus ook niet 1 op 1 toepassen voor een lift.
Het Warenwetbesluit liften pakt de draad vervolgens weer op, en omschrijft (ook via NEN-normen) waaraan een liftinstallatie verder moet voldoen. Ook dat kun je tijdens een aanvraag toetsen, maar daarvoor reikt de kennis van de meeste toetsers niet diep genoeg.
Wat je wel nog kunt bekijken is of je per bouwlaag niet over je maximale permanente vuurlast heen gaat(uit mijn hoofd 3500 MJ?), maar dat is meestal geen probleem. Ook weer heel formeel gaat die eis alleen over het trappenhuis. Ik weet zo niet of de formulering in het BBL nu ook anders is gemaakt, want dat zou bij een lifthal ook wel een verstandige keuze zijn.
Re: brandveiligheid liftschacht gelegen in een extra beveiligde vluchtroute
Naam: J. Bolte , van BJH Safety Services (datum: 31-05-2023 13:12)
Let er trouwens ook even op dat een EBV per definitie niet in een BC kan liggen. Elke andere ruimte MOET in een BC liggen. Daar waar je ruimtes aan je verkeersroute hebt grenzen (bijvoorbeeld dat hokje met die tafel onderin je tekening) zul je een brandscheiding krijgen met een WBDBO,Rookweerstand en dranger.
Naam: J. Bolte , van BJH Safety Services (datum: 31-05-2023 13:12)
Let er trouwens ook even op dat een EBV per definitie niet in een BC kan liggen. Elke andere ruimte MOET in een BC liggen. Daar waar je ruimtes aan je verkeersroute hebt grenzen (bijvoorbeeld dat hokje met die tafel onderin je tekening) zul je een brandscheiding krijgen met een WBDBO,Rookweerstand en dranger.
Re: brandveiligheid liftschacht gelegen in een extra beveiligde vluchtroute
Naam: Tim (datum: 05-07-2023 14:39)
De vraag is of je ook niet moet voldoen aan Art. 2.69a voor de elektra leidingen van de lift.
Reageer
Naam: Tim (datum: 05-07-2023 14:39)
De vraag is of je ook niet moet voldoen aan Art. 2.69a voor de elektra leidingen van de lift.




![[ S&W Consultancy ]](topics//logo.gif)
![[ Emma Interieuradvies]](topics/index/emma.png)