Zoek binnen het forum
Vraag: (Vlucht)Trappenhuis verdelen over GO ?
Naam: Jacob (datum: 14-12-2020 20:19)
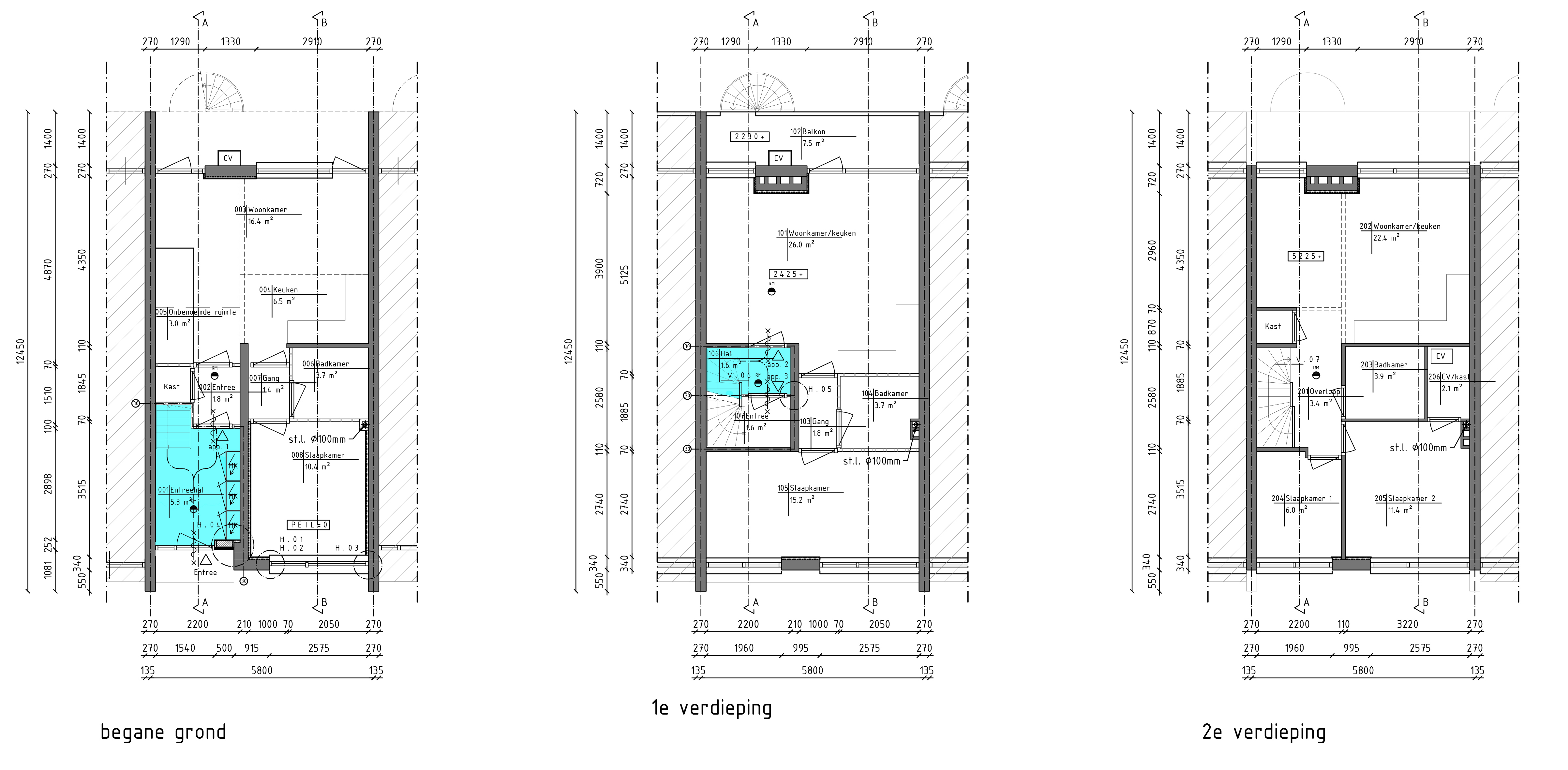
Vlgs NEN 2580 bij toelichting 4.5 punt 5, Dien je de GO vd gemeenschappelkijke ruimten ( in dit geval entree + meterkasten + trappenhuis ) naar rato vd oppervlakte over de gebruikfuncties (3 x zelfstandige woningen ) die van deze gemeenschappelijke ruimte(n) gebruik maken te verdelen.
Bij woon-en logiesfunctiues vindt geen toedeling plaats van gemeenschappelijke verkeersruimte, die buiten de niet-zelfstandige eenheden liggen.
Begrijp ik nu goed dat het totale oppervlakte van het trappenhuis ( tevens extra beschermde vluchtroute ) niet door 3 gedeeld hoeft te worden en 1/3 deel daarvan aan elk appartement hoeft te worden bijgetelt ?
Dus GO van elk appartement is zonder trappenhuis !
Bijlage: 5493513_1601642493526_OASA_20_025_000_DO_01_01_201002_03.jpg Reageer
Naam: Jacob (datum: 14-12-2020 20:19)
Vlgs NEN 2580 bij toelichting 4.5 punt 5, Dien je de GO vd gemeenschappelkijke ruimten ( in dit geval entree + meterkasten + trappenhuis ) naar rato vd oppervlakte over de gebruikfuncties (3 x zelfstandige woningen ) die van deze gemeenschappelijke ruimte(n) gebruik maken te verdelen.
Bij woon-en logiesfunctiues vindt geen toedeling plaats van gemeenschappelijke verkeersruimte, die buiten de niet-zelfstandige eenheden liggen.
Begrijp ik nu goed dat het totale oppervlakte van het trappenhuis ( tevens extra beschermde vluchtroute ) niet door 3 gedeeld hoeft te worden en 1/3 deel daarvan aan elk appartement hoeft te worden bijgetelt ?
Dus GO van elk appartement is zonder trappenhuis !
Bijlage: 5493513_1601642493526_OASA_20_025_000_DO_01_01_201002_03.jpg Reageer
Re: (Vlucht)Trappenhuis verdelen over GO
Naam: Leon (datum: 15-12-2020 09:49)
Volgens mij heb je je eigen vraag hierboven al beantwoord.
Naam: Leon (datum: 15-12-2020 09:49)
Volgens mij heb je je eigen vraag hierboven al beantwoord.
Re: (Vlucht)Trappenhuis verdelen over GO
Naam: Jack , van SenS (datum: 15-12-2020 14:30)
Klopt.
Zie ook de toelichting: omdat woon- en logiesfuncties in een woongebouw resp. logiesgebouw zoveel mogelijk hetzelfde moeten worden beoordeeld als woon- en logiesfuncties niet gelegen in een woon- of logiesgebouw.
Naam: Jack , van SenS (datum: 15-12-2020 14:30)
Klopt.
Zie ook de toelichting: omdat woon- en logiesfuncties in een woongebouw resp. logiesgebouw zoveel mogelijk hetzelfde moeten worden beoordeeld als woon- en logiesfuncties niet gelegen in een woon- of logiesgebouw.
Re: (Vlucht)Trappenhuis verdelen over GO
Naam: J. Bolte , van BJH Safety Services (datum: 16-12-2020 14:09)
Ligt er een beetje aan naar welke regel kijkt. Wanneer het gaat over het GO per gebruiksfunctie, of per verblijfsgebied, dan moet je ook alleen dat stuk bezien en hoef je andere gebieden niet daarbij te tellen.
Wanneer het gaat over grotere stukken van het gebouw, bijvoorbeeld voor de indeling in brandcompartimenten, moet je die zones er wel weer bij rekenen.
In mijn beroepsrichting loop ik vaak tegen deze verdelingsproblematiek op bij het bepalen van de bewakingsomvang van de brandmeldinstallatie, bijvoorbeeld.
Naam: J. Bolte , van BJH Safety Services (datum: 16-12-2020 14:09)
Ligt er een beetje aan naar welke regel kijkt. Wanneer het gaat over het GO per gebruiksfunctie, of per verblijfsgebied, dan moet je ook alleen dat stuk bezien en hoef je andere gebieden niet daarbij te tellen.
Wanneer het gaat over grotere stukken van het gebouw, bijvoorbeeld voor de indeling in brandcompartimenten, moet je die zones er wel weer bij rekenen.
In mijn beroepsrichting loop ik vaak tegen deze verdelingsproblematiek op bij het bepalen van de bewakingsomvang van de brandmeldinstallatie, bijvoorbeeld.
Re: (Vlucht)Trappenhuis verdelen over GO
Naam: J. Bolte , van BJH Safety Services (datum: 16-12-2020 14:11)
Dus mijn vraag: vanuit welke hoek wil je het bekijken. Puur de NEN2580, het bouwbesluit, het bestemmingsplan, de huisvestingsverordening of nog iets anders?
Naam: J. Bolte , van BJH Safety Services (datum: 16-12-2020 14:11)
Dus mijn vraag: vanuit welke hoek wil je het bekijken. Puur de NEN2580, het bouwbesluit, het bestemmingsplan, de huisvestingsverordening of nog iets anders?
Re: (Vlucht)Trappenhuis verdelen over GO
Naam: Leon (datum: 16-12-2020 23:05)
Gezien de formulering van de vraag ga ik er vanuit dat het gaat om het bepalen van de 55%-regel. Dat betekent inderdaad niet dat die vierkante meters GO ‘niet bestaan’.
Naam: Leon (datum: 16-12-2020 23:05)
Gezien de formulering van de vraag ga ik er vanuit dat het gaat om het bepalen van de 55%-regel. Dat betekent inderdaad niet dat die vierkante meters GO ‘niet bestaan’.
Re: (Vlucht)Trappenhuis verdelen over GO
Naam: J. Bolte , van BJH Safety Services (datum: 17-12-2020 11:28)
Die 55% geldt voor 'de woonfunctie', dus in dit geval de afzonderlijke woning. Dan hoef je niet zoveel met die gangen.
Reageer
Naam: J. Bolte , van BJH Safety Services (datum: 17-12-2020 11:28)
Die 55% geldt voor 'de woonfunctie', dus in dit geval de afzonderlijke woning. Dan hoef je niet zoveel met die gangen.




![[ S&W Consultancy ]](topics//logo.gif)
![[ Emma Interieuradvies]](topics/index/emma.png)