Zoek binnen het forum
Vraag: Berging
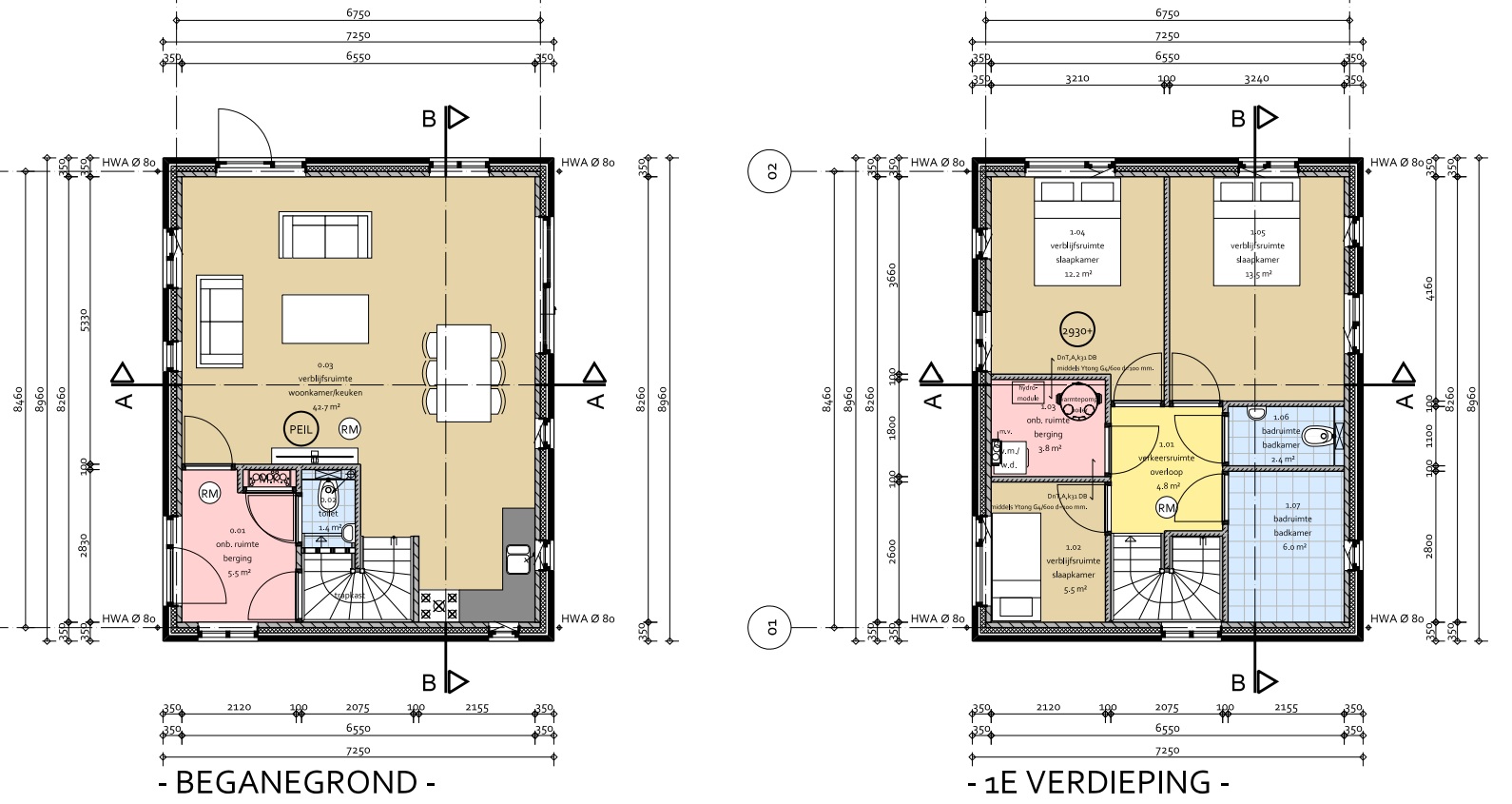
Naam: Frank (datum: 04-02-2019 10:51)
De Hal is tevens berging en er is geen buitenberging (schuurtje). Hier moeten moeten wij twee fietsen en een scooter stallen buiten al het tuingereedschap en verf spullen ed. Als je op de WC zit wat is dan je vlucht route en hoe zit het met ventilatie ivm benzine scooter en verfspullen ed.?
Bijlage: Huis met inpandege berging 1.jpg Reageer
Naam: Frank (datum: 04-02-2019 10:51)
De Hal is tevens berging en er is geen buitenberging (schuurtje). Hier moeten moeten wij twee fietsen en een scooter stallen buiten al het tuingereedschap en verf spullen ed. Als je op de WC zit wat is dan je vlucht route en hoe zit het met ventilatie ivm benzine scooter en verfspullen ed.?
Bijlage: Huis met inpandege berging 1.jpg Reageer
Re: Berging
Naam: Jeroen (datum: 04-02-2019 10:55)
Foutje van de computer?
Naam: Jeroen (datum: 04-02-2019 10:55)
Foutje van de computer?
Re: Berging
Naam: pino (datum: 04-02-2019 12:43)
En de gemeente heeft dit zo goedgekeurd?
de hal als buitenberging aangeven is uiteraadt niet zoals het de bedoeling is.
Naam: pino (datum: 04-02-2019 12:43)
En de gemeente heeft dit zo goedgekeurd?
de hal als buitenberging aangeven is uiteraadt niet zoals het de bedoeling is.
Re: Berging
Naam: ab (datum: 04-02-2019 12:58)
ik heb een mooie racefiets die ik in de woonkamer stal. (is veruit het duurste meubelstuk in de woonkamer) (;-)
Naam: ab (datum: 04-02-2019 12:58)
ik heb een mooie racefiets die ik in de woonkamer stal. (is veruit het duurste meubelstuk in de woonkamer) (;-)
Re: Berging
Naam: B. Dover (datum: 04-02-2019 15:22)
Ha, dat is een slimme truc om een buitenberging te besparen. Dat heb ik nog niet eerder gezien. Ik kan zo snel geen reden vinden waarom het niet mag maar heb wel zo mijn twijfels.
Neem contact op met de ontwikkelaar van wie je het gekocht hebt en vraag hoe het zit. Anders even contact opnemen met bouw-en woningtoezicht van de gemeente.
Naam: B. Dover (datum: 04-02-2019 15:22)
Ha, dat is een slimme truc om een buitenberging te besparen. Dat heb ik nog niet eerder gezien. Ik kan zo snel geen reden vinden waarom het niet mag maar heb wel zo mijn twijfels.
Neem contact op met de ontwikkelaar van wie je het gekocht hebt en vraag hoe het zit. Anders even contact opnemen met bouw-en woningtoezicht van de gemeente.
Re: Berging
Naam: Leon (datum: 04-02-2019 16:12)
Als de gemeenteambtenaar een beetje ballen heeft dan keurt hij/zij dat gewoon af. Al is het maar op het eerste artikel van de buitenruimte, namelijk dat je fietsen of scootmobiels moet kunnen stallen. Dat krijg je hier met goed fatsoen niet kwijt (dat lukt bij een 'echte' berging van 5,0 m2 al niet). Wat een aanfluiting dit.
Naam: Leon (datum: 04-02-2019 16:12)
Als de gemeenteambtenaar een beetje ballen heeft dan keurt hij/zij dat gewoon af. Al is het maar op het eerste artikel van de buitenruimte, namelijk dat je fietsen of scootmobiels moet kunnen stallen. Dat krijg je hier met goed fatsoen niet kwijt (dat lukt bij een 'echte' berging van 5,0 m2 al niet). Wat een aanfluiting dit.
Re: Berging
Naam: Jack , van SenS (datum: 04-02-2019 16:33)
Waarschijnlijk heeft de tekenaar een verkeerde keuze gemaakt bij het arceren en benoemen van deze ruimte. Moet verkeersruimte zijn (vergl. overloop). Ik kan me niet voorstellen dat het werkelijk de bedoeling is hal en (buiten)berging te combineren.
Wat is de status van deze tekening?
Ontwerp, verkooptekening, bouwaanvraag ...?
Naam: Jack , van SenS (datum: 04-02-2019 16:33)
Waarschijnlijk heeft de tekenaar een verkeerde keuze gemaakt bij het arceren en benoemen van deze ruimte. Moet verkeersruimte zijn (vergl. overloop). Ik kan me niet voorstellen dat het werkelijk de bedoeling is hal en (buiten)berging te combineren.
Wat is de status van deze tekening?
Ontwerp, verkooptekening, bouwaanvraag ...?
Re: Berging
Naam: John , van Wolters ARCHITEKTUUR (datum: 04-02-2019 20:21)
Bouwbesluit stelt een (buiten)berging bij een woning.
Op deze tekening is het geen berging als bedoeld in het bouwbesluit. Als entree (verkeersruimte) is het net geschikt …… al past een garderobe/kapstok er al niet meer bij.
Naam: John , van Wolters ARCHITEKTUUR (datum: 04-02-2019 20:21)
Bouwbesluit stelt een (buiten)berging bij een woning.
Op deze tekening is het geen berging als bedoeld in het bouwbesluit. Als entree (verkeersruimte) is het net geschikt …… al past een garderobe/kapstok er al niet meer bij.
Re: Berging
Naam: Leon (datum: 04-02-2019 22:12)
Er is geen andere buitenberging. En het is me iets te toevallig dat die hal breder is dan 1,8 m en net de 5,0 m2 overschteidt...
Naam: Leon (datum: 04-02-2019 22:12)
Er is geen andere buitenberging. En het is me iets te toevallig dat die hal breder is dan 1,8 m en net de 5,0 m2 overschteidt...
Re: Berging
Naam: pino (datum: 05-02-2019 08:47)
Toch benieuwd hoe je deze formeel moet afkeuren?
Naam: pino (datum: 05-02-2019 08:47)
Toch benieuwd hoe je deze formeel moet afkeuren?
Re: Berging
Naam: B. Dover (datum: 05-02-2019 09:40)
Precies. Het lijkt me geen toeval maar een trucje om een buitenberging te besparen.
Dat is natuurlijk niet de bedoeling alleen ik zie zo snel geen reden om dit op grond van het bouwbesluit af te keuren.
Ik ben wel erg benieuwd of ik iets over het hoofd zie.
Naam: B. Dover (datum: 05-02-2019 09:40)
Precies. Het lijkt me geen toeval maar een trucje om een buitenberging te besparen.
Dat is natuurlijk niet de bedoeling alleen ik zie zo snel geen reden om dit op grond van het bouwbesluit af te keuren.
Ik ben wel erg benieuwd of ik iets over het hoofd zie.
Re: Berging
Naam: Leon (datum: 05-02-2019 09:56)
Wat dacht je van de functionele eis, artikel 4.30, lid 1? In de 'berging' zoals die nu is getekend kun je met goed fatsoen nog geen kinderfiets kwijt zonder dat deze compleet in de weg staat. Daar kun je als gemeente op z'n minst vraagtekens bij zetten, laat de aanvrager dan maar aantonen dat e.e.a. WEL voldoet. We zijn het denk ik wel met elkaar eens dat dit geen berging is zoals je die redelijkerwijs kan/mag verwachten, maar dat het gewoon een trucje is. Overigens wordt in artikel 4.31, lid 1 aangegeven dat de berging een nevenfunctie dient te zijn van de woonfunctie, in de nota van toelichting is vervolgens aangegeven dat het dan om de overige gebruiksfunctie moet gaan. En dat betekent weer een thermische scheiding tussen berging en woning. Nu kun je dat op basis van gelijkwaardigheid allemaal wel tackelen, maar dat is hier waarschijnlijk niet gedaan. En gelijkwaardigheid mag je vervolgens ook afkeuren als gemeente zijnde mits e.e.a. niet voldoende onderbouwd is.
Naam: Leon (datum: 05-02-2019 09:56)
Wat dacht je van de functionele eis, artikel 4.30, lid 1? In de 'berging' zoals die nu is getekend kun je met goed fatsoen nog geen kinderfiets kwijt zonder dat deze compleet in de weg staat. Daar kun je als gemeente op z'n minst vraagtekens bij zetten, laat de aanvrager dan maar aantonen dat e.e.a. WEL voldoet. We zijn het denk ik wel met elkaar eens dat dit geen berging is zoals je die redelijkerwijs kan/mag verwachten, maar dat het gewoon een trucje is. Overigens wordt in artikel 4.31, lid 1 aangegeven dat de berging een nevenfunctie dient te zijn van de woonfunctie, in de nota van toelichting is vervolgens aangegeven dat het dan om de overige gebruiksfunctie moet gaan. En dat betekent weer een thermische scheiding tussen berging en woning. Nu kun je dat op basis van gelijkwaardigheid allemaal wel tackelen, maar dat is hier waarschijnlijk niet gedaan. En gelijkwaardigheid mag je vervolgens ook afkeuren als gemeente zijnde mits e.e.a. niet voldoende onderbouwd is.
Re: Berging
Naam: Jack , van SenS (datum: 05-02-2019 10:31)
Een theoretisch trucje om een buitenberging te besparen ... ? Als het koopwoningen betreft, dan vraag ik me toch af wat een makelaar hier van vindt en wat het doet mbt de verkoopbaarheid.
Indien van toepassing; Woningborg gaat hier volgens mij ook nooit mee akkoord.
Naam: Jack , van SenS (datum: 05-02-2019 10:31)
Een theoretisch trucje om een buitenberging te besparen ... ? Als het koopwoningen betreft, dan vraag ik me toch af wat een makelaar hier van vindt en wat het doet mbt de verkoopbaarheid.
Indien van toepassing; Woningborg gaat hier volgens mij ook nooit mee akkoord.
Re: Berging
Naam: Jack , van SenS (datum: 05-02-2019 10:39)
Indeling roept overigens wel meer vragen op; waarom zo'n grote toiletruimte en badruimte op de verdieping? Alleen de badkamer is al groter dan de kleine slaapkamer? Op z'n minst ongebruikelijk te noemen.
Is dit projectmatig of particulier (of CPO)?
Naam: Jack , van SenS (datum: 05-02-2019 10:39)
Indeling roept overigens wel meer vragen op; waarom zo'n grote toiletruimte en badruimte op de verdieping? Alleen de badkamer is al groter dan de kleine slaapkamer? Op z'n minst ongebruikelijk te noemen.
Is dit projectmatig of particulier (of CPO)?
Re: Berging
Naam: Leon (datum: 05-02-2019 11:05)
Lijkt mij geen projectbouw dit Jack. Kleine keuken, grote badkamer, vreemde verhouding qua slaapkamers... Oogt vrij specifiek. Als je dit bij de gemiddelde projectontwikkelaar voorstelt dan sta je alweer buiten voordat je je zin hebt afgemaakt...
Naam: Leon (datum: 05-02-2019 11:05)
Lijkt mij geen projectbouw dit Jack. Kleine keuken, grote badkamer, vreemde verhouding qua slaapkamers... Oogt vrij specifiek. Als je dit bij de gemiddelde projectontwikkelaar voorstelt dan sta je alweer buiten voordat je je zin hebt afgemaakt...
Re: Berging
Naam: Jack , van SenS (datum: 05-02-2019 11:27)
Dat dacht ik nl. ook Leon. Vandaar mijn vraag. Als het gebouwd is/wordt in particulier eigendom, dan is een buitenberging niet verplicht. Dan zou het dus wel een onbedoeld verkeerde aanduiding / arcering kunnen zijn.
Naam: Jack , van SenS (datum: 05-02-2019 11:27)
Dat dacht ik nl. ook Leon. Vandaar mijn vraag. Als het gebouwd is/wordt in particulier eigendom, dan is een buitenberging niet verplicht. Dan zou het dus wel een onbedoeld verkeerde aanduiding / arcering kunnen zijn.
Re: Berging
Naam: B. Dover (datum: 05-02-2019 11:33)
Maar als het particulier opdrachtgeverschap betreft dan zal de opdrachtgever de vraag niet gesteld hebben aangezien hij dit dan goedgekeurd heeft. CPO zou kunnen maar dan was de TS er toch ook bij toen dit besloten werd.
Misschien zijn de tuinen erg klein waardoor er nauwelijks ruimte is om een buitenberging te plaatsen?
Naam: B. Dover (datum: 05-02-2019 11:33)
Maar als het particulier opdrachtgeverschap betreft dan zal de opdrachtgever de vraag niet gesteld hebben aangezien hij dit dan goedgekeurd heeft. CPO zou kunnen maar dan was de TS er toch ook bij toen dit besloten werd.
Misschien zijn de tuinen erg klein waardoor er nauwelijks ruimte is om een buitenberging te plaatsen?
Re: Berging
Naam: Leon (datum: 05-02-2019 11:46)
Zou kunnen, maar in dat geval vind ik de reactie van TS wat vreemd. Ik neem aan dat hij dan de bewoner wordt. De vraag/klacht ten aanzien van de berging zou dan bij de ontwerpende partij neergelegd moeten worden, niet op een forum...
Naam: Leon (datum: 05-02-2019 11:46)
Zou kunnen, maar in dat geval vind ik de reactie van TS wat vreemd. Ik neem aan dat hij dan de bewoner wordt. De vraag/klacht ten aanzien van de berging zou dan bij de ontwerpende partij neergelegd moeten worden, niet op een forum...
Re: Berging
Naam: J. Bolte , van BJH Safety Services (datum: 05-02-2019 14:14)
Ik denk gewoon een fout van de tekenaar waarbij hij de omschrijving van de verdieping naar beneden gekopieerd heeft. Dat halletje moet verkeersruimte zijn, net als de overloop.
Naam: J. Bolte , van BJH Safety Services (datum: 05-02-2019 14:14)
Ik denk gewoon een fout van de tekenaar waarbij hij de omschrijving van de verdieping naar beneden gekopieerd heeft. Dat halletje moet verkeersruimte zijn, net als de overloop.
Re: Berging
Naam: J. Bolte , van BJH Safety Services (datum: 05-02-2019 14:17)
Is dit trouwens een 'normaal' huis, of is er nog iets speciaals mee? Het lijkt me zo'n klein ding voor een vrijstaand kavel.
Naam: J. Bolte , van BJH Safety Services (datum: 05-02-2019 14:17)
Is dit trouwens een 'normaal' huis, of is er nog iets speciaals mee? Het lijkt me zo'n klein ding voor een vrijstaand kavel.
Re: Berging
Naam: Pino (datum: 05-02-2019 14:17)
Opdrachtgever rekenen zich wel vaker rijk Als ze ergens recht op menen te hebben zonder daarvoor te moeten betalen
Naam: Pino (datum: 05-02-2019 14:17)
Opdrachtgever rekenen zich wel vaker rijk Als ze ergens recht op menen te hebben zonder daarvoor te moeten betalen
Re: Berging
Naam: de r.r. (datum: 05-02-2019 21:41)
Allemaal vragen, maar waar blijft Frank met de antwoorden??
Naam: de r.r. (datum: 05-02-2019 21:41)
Allemaal vragen, maar waar blijft Frank met de antwoorden??
Re: Berging
Naam: Jack , van SenS (datum: 06-02-2019 12:16)
Die zit op het toilet, maar hij kan er niet uit; scooter staat voor de deur ...
Naam: Jack , van SenS (datum: 06-02-2019 12:16)
Die zit op het toilet, maar hij kan er niet uit; scooter staat voor de deur ...
Re: Berging
Naam: Jack , van SenS (datum: 06-02-2019 12:18)
Sorry, beetje flauw ...
Maar inderdaad, ik ben ook benieuwd naar de antwoorden en/of aanvullende achtergrondinformatie.
Naam: Jack , van SenS (datum: 06-02-2019 12:18)
Sorry, beetje flauw ...
Maar inderdaad, ik ben ook benieuwd naar de antwoorden en/of aanvullende achtergrondinformatie.
Re: Berging
Naam: B. Dover (datum: 06-02-2019 13:03)
Dat is het probleem met dit soort fora; je hoort zelden hoe het afgelopen is of hoe het nu precies zit.
Reageer
Naam: B. Dover (datum: 06-02-2019 13:03)
Dat is het probleem met dit soort fora; je hoort zelden hoe het afgelopen is of hoe het nu precies zit.




![[ S&W Consultancy ]](topics//logo.gif)
![[ Emma Interieuradvies]](topics/index/emma.png)