Zoek binnen het forum
Vraag: Rechtens verkregen niveau en daglicht
Naam: Dirk Gevers, van Student TU Delft (datum: 22-03-2018 20:51)
Beste heer/mevrouw,
Bij verbouw aan een gebouw, geldt voor daglicht het rechtens verkregen niveau.
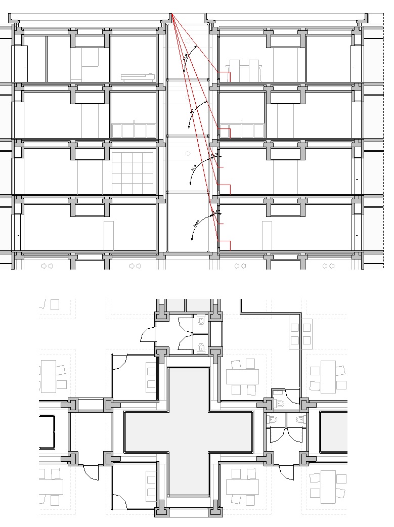
Nou werk ik momenteel aan een project waarbij het gaat om verbouw van een bestaand gebouw. In dit gebouw bevinden zich 4 verdieping hoge, tamelijk smalle vides. Deze vides worden in mijn herontwerp omsloten door een glazen buitengevel en de vide wordt hiermee getransformeerd naar een buitenruimte. Na het maken van een snelle berekening kom ik er achter dat de onderste 3 verdiepingen niet voldoen aan de daglichteisen van nieuwbouw, door de belemmeringsfactor die ontstaat door de hoge, smalle vide. Mijn vraag is, geldt voor deze situatie het rechtens verkregen niveau? Omdat het verkregen, bestaande gebouw de belemmering vormt.. Of gelden de eisen voor nieuwbouw? Omdat ik tenslotte nieuwe gevelelementen toevoeg, waar voorheen geen gevel zat..
Bij voorbaat dank!
Bijlage: magweg.jpg Reageer
Naam: Dirk Gevers, van Student TU Delft (datum: 22-03-2018 20:51)
Beste heer/mevrouw,
Bij verbouw aan een gebouw, geldt voor daglicht het rechtens verkregen niveau.
Nou werk ik momenteel aan een project waarbij het gaat om verbouw van een bestaand gebouw. In dit gebouw bevinden zich 4 verdieping hoge, tamelijk smalle vides. Deze vides worden in mijn herontwerp omsloten door een glazen buitengevel en de vide wordt hiermee getransformeerd naar een buitenruimte. Na het maken van een snelle berekening kom ik er achter dat de onderste 3 verdiepingen niet voldoen aan de daglichteisen van nieuwbouw, door de belemmeringsfactor die ontstaat door de hoge, smalle vide. Mijn vraag is, geldt voor deze situatie het rechtens verkregen niveau? Omdat het verkregen, bestaande gebouw de belemmering vormt.. Of gelden de eisen voor nieuwbouw? Omdat ik tenslotte nieuwe gevelelementen toevoeg, waar voorheen geen gevel zat..
Bij voorbaat dank!
Bijlage: magweg.jpg Reageer
Re: Rechtens verkregen niveau en daglicht
Naam: Spock (datum: 23-03-2018 12:31)
In dit geval geldt rechtens verkregen niveau met als minimum bestaande bouw.
Naam: Spock (datum: 23-03-2018 12:31)
In dit geval geldt rechtens verkregen niveau met als minimum bestaande bouw.
Re: Rechtens verkregen niveau en daglicht
Naam: Michiel Meinema , van Bouwfysica Meinema (datum: 23-03-2018 13:10)
Tenzij functie wijzigt.
Naam: Michiel Meinema , van Bouwfysica Meinema (datum: 23-03-2018 13:10)
Tenzij functie wijzigt.
Re: Rechtens verkregen niveau en daglicht
Naam: Leon (datum: 23-03-2018 13:59)
Niet waar, functiewijziging valt niet onder bouwen. In dat geval dien je te kijken bij de eisen voor bestaande bouw van de nieuwe functie.
Naam: Leon (datum: 23-03-2018 13:59)
Niet waar, functiewijziging valt niet onder bouwen. In dat geval dien je te kijken bij de eisen voor bestaande bouw van de nieuwe functie.
Re: Rechtens verkregen niveau en daglicht
Naam: Michiel Meinema , van Bouwfysica Meinema (datum: 23-03-2018 14:15)
nieuwe gevelelement trekt nu deel van buitenruimte naar binnen, toch of zie ik dat verkeerd?
Naam: Michiel Meinema , van Bouwfysica Meinema (datum: 23-03-2018 14:15)
nieuwe gevelelement trekt nu deel van buitenruimte naar binnen, toch of zie ik dat verkeerd?
Re: Rechtens verkregen niveau en daglicht
Naam: Leon (datum: 23-03-2018 22:42)
Oh je bedoelt van buitenruimte naar binnenruimte, dacht dat je gebruiksfunctie bedoelde.
Reageer
Naam: Leon (datum: 23-03-2018 22:42)
Oh je bedoelt van buitenruimte naar binnenruimte, dacht dat je gebruiksfunctie bedoelde.




![[ S&W Consultancy ]](topics//logo.gif)
![[ Emma Interieuradvies]](topics/index/emma.png)