Zoek binnen het forum
Vraag: samenvoegen bijgebouw en uitbouw
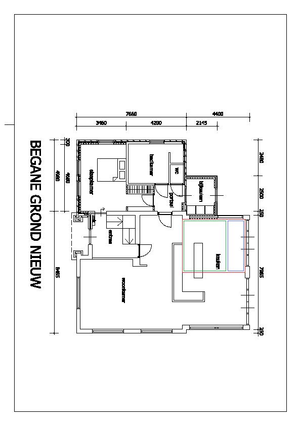
Naam: Jan Nijland (datum: 24-09-2011 13:44)
Geachte,
Bij het aanvragen van een bouwvergunning (zie bijlage) heeft de gemeente ons gewezen op de maximale inhoud van 600 m3. Voorstel van de gemeente is om een deel van de uitbouw (rood gearceerd) te slopen. Als zodanig is de vergunning verleend. Echter kan het deel wat is afgebroken weer onder het Wabo worden herbouwd. namelijk 2,5mtr uitbouw (groen gearceerd)en rest als aangebouwd bijgebouw (blauw gearceerd). De gemeente heeft dit inmiddels bevestigd en mee te willen werken. Kortom: het gedeelte dat gesloopt moest worden mag blijven staan, men eist echter wel en scheidingswand op 2,5mtr.
Vraag:
(1)is deze eis (scheidingswand) terecht?
(2) mag deze wand na de verbouwing worden verwijderd?
m.v.g. Jan Nijland
Bijlage: samenvoegen bijgebouw en uitbouw.jpg Reageer
Naam: Jan Nijland (datum: 24-09-2011 13:44)
Geachte,
Bij het aanvragen van een bouwvergunning (zie bijlage) heeft de gemeente ons gewezen op de maximale inhoud van 600 m3. Voorstel van de gemeente is om een deel van de uitbouw (rood gearceerd) te slopen. Als zodanig is de vergunning verleend. Echter kan het deel wat is afgebroken weer onder het Wabo worden herbouwd. namelijk 2,5mtr uitbouw (groen gearceerd)en rest als aangebouwd bijgebouw (blauw gearceerd). De gemeente heeft dit inmiddels bevestigd en mee te willen werken. Kortom: het gedeelte dat gesloopt moest worden mag blijven staan, men eist echter wel en scheidingswand op 2,5mtr.
Vraag:
(1)is deze eis (scheidingswand) terecht?
(2) mag deze wand na de verbouwing worden verwijderd?
m.v.g. Jan Nijland
Bijlage: samenvoegen bijgebouw en uitbouw.jpg Reageer
Re: samenvoegen bijgebouw en uitbouw
Naam: tim (datum: 24-09-2011 14:25)
1. ja (bijlage 2, lid 2 bor);
2. nee (zelfde artikel).
er is natuurlijk geen gemeente die daarop actief gaat handhaven, tenzij er een melding van komt.
Naam: tim (datum: 24-09-2011 14:25)
1. ja (bijlage 2, lid 2 bor);
2. nee (zelfde artikel).
er is natuurlijk geen gemeente die daarop actief gaat handhaven, tenzij er een melding van komt.
Re: samenvoegen bijgebouw en uitbouw
Naam: Jan Nijland (datum: 25-09-2011 15:08)
Beste Tim,
bedankt voor je reactie.
Het is wel zo dat hetgeen in eerste instantie diende te worden gesloopt in een eerder stadium met vergunning is neergezet. Maakt dit nog verschil of zijn er nog andere mogelijkheden welke naar Rome kunnen leiden?
Gr. Jan Nijland
Reageer
Naam: Jan Nijland (datum: 25-09-2011 15:08)
Beste Tim,
bedankt voor je reactie.
Het is wel zo dat hetgeen in eerste instantie diende te worden gesloopt in een eerder stadium met vergunning is neergezet. Maakt dit nog verschil of zijn er nog andere mogelijkheden welke naar Rome kunnen leiden?
Gr. Jan Nijland




![[ S&W Consultancy ]](topics//logo.gif)
![[ Emma Interieuradvies]](topics/index/emma.png)